产品中心

匠心 服务 创新 品质

向下滚动
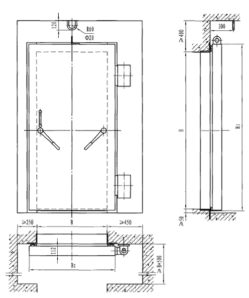
防护防火密闭门(一)

防护防火密闭门的显著特点是防火能力强,门扇中有防火填料,除具有普通防护密闭门或密闭门的功能外还能防火、防烟,其防火等级为甲级。

型号 门孔宽B 门孔高H B1 H1
FFHM0820(6) 800 2000 1000 2123
FFHM1020(6) 1000 2000 1200 2123
FFHM1118(6) 1100 1800 1300 1923
FFHM1220(6) 1200 2000 1400 2123
FFHM1320(6) 1300 2000 1500 2123
FFHM1520(6) 1500 2000 1700 2123