匠心 服务 创新 品质

防护防火密闭门的显著特点是防火能力强,门扇中有防火填料,除具有普通防护密闭门或密闭门的功能外还能防火、防烟,其防火等级为甲级。

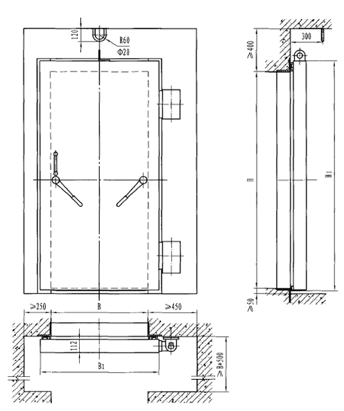
| 型号 | 门孔宽B | 门孔高H | B1 | H1 |
|---|---|---|---|---|
| FFHM0820(5) | 800 | 2000 | 1000 | 2123 |
| FFHM0920(5) | 900 | 2000 | 1100 | 2123 |
| FFHM1020(5) | 1000 | 2000 | 1200 | 2123 |
| FFHM1220(5) | 1200 | 2000 | 1400 | 2123 |
| FFHM1320(5) | 1300 | 2000 | 1500 | 2123 |
| FFHM1520(5) | 1500 | 2000 | 1700 | 2123 |
| FFHM2020(5) | 20000 | 2000 | 2200 | 2123 |