产品中心

匠心 服务 创新 品质

向下滚动
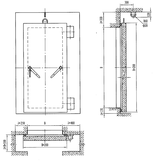
钢筋混凝土单扇防护密闭门

此类门的特点是门扇为钢筋混凝土结构,具有固定门槛,密闭措施采用嵌压梯形海绵胶条密封型式,密闭性能可靠,使用、维护方便,但门扇质量较重。

产品结构图

型号 门孔宽B 门孔高H 门扇厚δ
HFM0716(5) 700 1600 100
HFM0820(5) 800 2000 100
HFM0916(5) 900 1600 100
HFM0918(5) 900 1800 100
HFM0920(5) 900 2000 126
HFM1020(5) 1000 2000 126
HFM1118(5) 1100 1800 126
HFM1220(5) 1200 2000 140
HFM1320(5) 1300 2000 140
HFM1520(5) 1500 2000 160
HFM2020(5) 2000 2000 180
HFM0820(6) 800 2000 100
HFM0920(6) 900 2000 100
HFM1020(6) 1000 2000 100
HFM1220(6) 1200 2000 126
HFM1320(6) 1300 2000 126
HFM1520(6) 1500 2000 126
HFM1820(6) 1800 2000 140
HFM2020(6) 2000 2000 140