
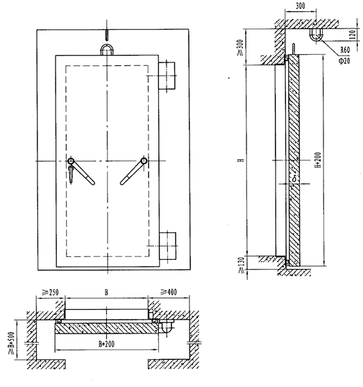
此类门的特点是门扇为钢筋混凝土结构,具有固定门槛,密闭措施采用嵌压梯形海绵胶条密封型式,密闭性能可靠,使用、维护方便,但门扇质量较重。

产品结构图
| 型号 |
门孔宽B |
门孔高H |
门扇厚δ |
| HM0716 |
700 |
1600 |
100 |
| HM0820 |
800 |
2000 |
100 |
| HM0920 |
900 |
2000 |
100 |
| HM1020 |
1000 |
2000 |
100 |
| HM1220 |
1200 |
2000 |
100 |
| HM1320 |
1300 |
2000 |
100 |
| HM1520 |
1500 |
2000 |
126 |
| HM2020 |
2000 |
2000 |
126 |