匠心 服务 创新 品质

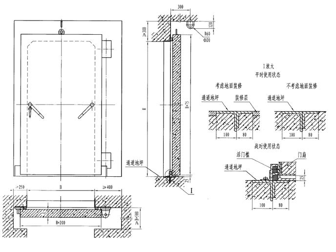
此类门的特点是平时不设门槛,地面平整,便于人员或车辆通行:战时快速设置门槛,以满足防护、密闭要求。

| 型号 | 门孔宽B | 门孔高H | 门扇厚δ |
|---|---|---|---|
| HHFM0820(6) | 800 | 2000 | 120 |
| HHFM0920(6) | 900 | 2000 | 120 |
| HHFM1020(6) | 1000 | 2000 | 120 |
| HHFM1220(6) | 1200 | 2000 | 126 |
| HHFM1320(6) | 1300 | 2000 | 140 |
| HHFM1520(6) | 1500 | 2000 | 140 |
| HHFM2020(6) | 2000 | 2000 | 180 |
| HHFM2020(6) | 2000 | 2400 | 180 |
| HHFM0820(5) | 800 | 2000 | 126 |
| HHFM0920(5) | 900 | 2000 | 126 |
| HHFM1020(5) | 1000 | 2000 | 126 |
| HHFM1220(5) | 1200 | 2000 | 126 |
| HHFM1320(5) | 1300 | 2000 | 140 |
| HHFM1520(5) | 1500 | 2000 | 160 |
| HHFM2020(5) | 2000 | 2000 | 200 |