匠心 服务 创新 品质

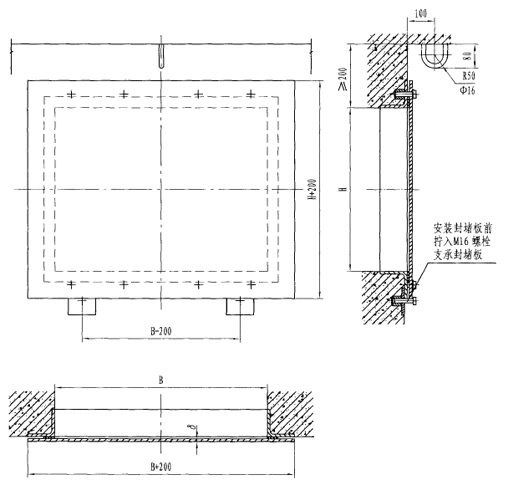
此封堵板可用于封堵平时使用、战时不用的孔口。其特点是平时可以不安装封堵板(但要加工好防在附近的指定位置),战时根据事先设定的转换时限将封堵板进行快速安装,以满足防护、密闭的要求。根据其设置位置的不同可分为防护单元通风口或连通口用双向受力防护密闭封堵板(编号中无“L”)和临空墙防护密闭封堵板两大类。

| 型号 | 门孔宽B | 门孔高H | 封堵板厚δ |
|---|---|---|---|
| FMDB0606(6) | 600 | 600 | 4 |
| FMDB0806(6) | 800 | 600 | 5 |
| FMDB1006(6) | 1000 | 600 | 5 |
| FMDB1009(6) | 1000 | 900 | 6 |
| FMDB1206(6) | 1200 | 600 | 8 |
| FMDB1209(6) | 1200 | 600 | 8 |
| FMDB1406(6) | 1400 | 900 | 8 |
| FMDB1409(6) | 1400 | 600 | 8 |
| FMDB1606(6) | 1600 | 900 | 8 |
| FMDB1609(6) | 1600 | 900 | 8 |
| FMDB1806(6) | 1800 | 600 | 8 |
| FMDB1809(6) | 1800 | 900 | 10 |
| FMDB2006(6) | 2000 | 600 | 8 |
| FMDB2009(6) | 2000 | 900 | 10 |
| FMDB2206(6) | 2200 | 600 | 8 |
| FMDB2209(6) | 2200 | 900 | 10 |
| FMDB2406(6) | 2400 | 900 | 8 |
| FMDB2409(6) | 2400 | 900 | 10 |
| FMDB2606(6) | 2600 | 600 | 8 |
| FMDB2609(6) | 2600 | 600 | 10 |
| FMDB2806(6) | 2800 | 600 | 8 |
| FMDB2809(6) | 2800 | 900 | 10 |
| FMDB3006(6) | 3000 | 600 | 8 |
| FMDB3009(6) | 3000 | 900 | 10 |
| FMDB0606(5) | 600 | 600 | 5 |
| FMDB0806(5) | 800 | 600 | 6 |
| FMDB1006(5) | 1000 | 600 | 8 |
| FMDB1009(5) | 1000 | 900 | 8 |
| FMDB1206(5) | 1200 | 600 | 8 |
| FMDB1209(5) | 1200 | 900 | 10 |
| FMDB1406(5) | 1400 | 600 | 10 |
| FMDB1409(5) | 1400 | 900 | 10 |
| FMDB1606(5) | 1600 | 600 | 10 |
| FMDB1609(5) | 1600 | 900 | 10 |
| FMDB1806(5) | 1800 | 600 | 10 |
| FMDB1809(5) | 1800 | 900 | 12 |
| FMDB2006(5) | 2000 | 600 | 10 |
| FMDB2009(5) | 2000 | 900 | 12 |
| FMDB2206(5) | 2200 | 600 | 10 |
| FMDB2209(5) | 2200 | 900 | 12 |
| FMDB2406(5) | 2400 | 600 | 10 |
| FMDB2409(5) | 2400 | 900 | 12 |
| FMDB2606(5) | 2600 | 600 | 10 |
| FMDB2609(5) | 2600 | 900 | 12 |
| FMDB2806(5) | 2800 | 600 | 10 |
| FMDB2809(5) | 2800 | 900 | 12 |
| FMDB3006(5) | 3000 | 600 | 10 |
| FMDB3009(5) | 3000 | 900 | 12 |