匠心 服务 创新 品质

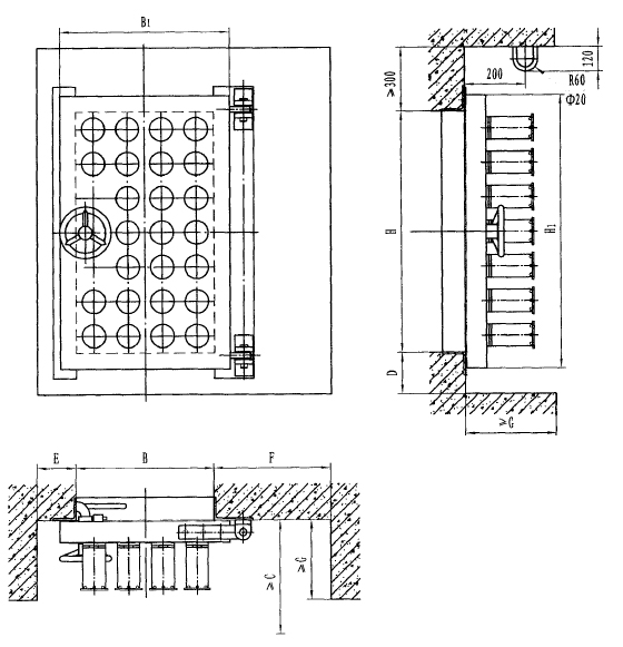
此类门的特点是消波率高,是一种在冲击波超压作用下能迅速关闭的活门。胶管边形后,将绝大部分冲击波超压堵截在工程外面。当作用在胶管式防爆波活门上的空气冲击波超压设计值不大于0.3MPa时,消波系统可取消扩散室,直接采用胶管式防爆波活门。

| 型号 | 风量(m3/h) | 门孔尺寸HXB(mm) | 门扇尺寸H1XB1 | 胶管数N | 门扇质量(kg) | 活门质量(kg) | 扩散室最小尺寸(高x宽x长)(m) | 土建尺寸D(mm) | 土建尺寸E(mm) | 土建尺寸F(mm) | 土建尺寸G(mm) | 门扇开启最小尺寸C(mm) |
|---|---|---|---|---|---|---|---|---|---|---|---|---|
| KJH200(5) | 900 | 320x320 | 440x440 | 4 | 14 | 45 | 0.45x0.45x0.40 | 160 | 140 | 340 | 300 | 550 |
| KJH300(5) | 2000 | 440x440 | 580x580 | 9 | 22 | 60 | 0.65x0.65x0.60 | 170 | 170 | 380 | 300 | 700 |
| KJH400(5) | 3600 | 880x440 | 1000x560 | 16 | 60 | 133 | 1.00x0.80x0.80 | 160 | 170 | 380 | 300 | 700 |
| KJH500(5) | 5600 | 1040x560 | 1200x700 | 25 | 85 | 164 | 1.20x1.00x1.00 | 180 | 170 | 420 | 400 | 800 |
| KJH600(5) | 8000 | 1200x700 | 1360x840 | 36 | 125 | 225 | 1.40x1.20x1.20 | 180 | 170 | 410 | 400 | 950 |
| KJH800(5) | 14500 | 1800x840 | 1960x1000 | 64 | 266 | 500 | 2.00x1.40x1.60 | 180 | 180 | 430 | 400 | 1100 |
| KJH1000(5) | 22000 | 2240x980 | 2400x140 | 100 | 402 | 570 | 2.40x1.60x2.00 | 180 | 170 | 430 | 450 | 1300 |