网站首页
关于我们
产品中心
经典案例
新闻中心
联系我们
MENU
网站首页
关于我们
产品中心
经典案例
新闻中心
联系我们
产品中心
匠心 服务 创新 品质
首页
>
产品中心
产品中心
经典案例
>
防护密闭屏蔽门与密闭屏蔽门
防护密闭屏蔽门与密闭屏蔽门
钢筋混凝土防护密闭门
钢结构防护密闭门
电控防护密闭门与密闭门
防护防火密闭门与防火密闭门
密闭观察窗
防爆波活门
密闭阀门
防护密闭封堵板
战时风水电产品
特种专用防护设备
>
密闭屏蔽门
产品中心
PRODUCTS CENTER
向下滚动
钢筋混凝土防护密闭门
钢结构防护密闭门
防护密闭屏蔽门与密闭屏蔽门
电控防护密闭门与密闭门
防护防火密闭门与防火密闭门
密闭观察窗
防爆波活门
密闭阀门
防护密闭封堵板
战时风水电产品
特种专用防护设备
密闭屏蔽门
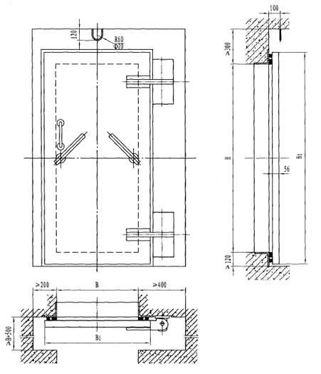
该类门共有防护防火密闭门与防火密闭门两种类型,显著特点是防火能力强,门扇中有防火填料,除具有普通防护密闭门或密闭门的功能外还能防火、防烟,其防火等级为甲级。
型号
门孔宽B
门孔高H
B
1
H
1
MP0716
700
1600
900
1800
MP0820
800
2000
1000
2200
MP0918
900
1800
1100
2000
MP0920
900
2000
1100
2000
MP1020
1000
2000
1200
2200
上一条
下一条