匠心 服务 创新 品质

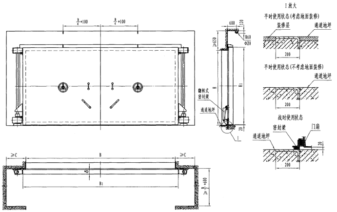
此类门设置在两个相邻防护单元连通口的防护密闭隔墙上。其特点是地面平整无门槛,可双向分别受力,双向密闭,平战转换快捷。

| 型号(一) | 门孔宽B | 门孔高H | 门扇厚δ | B1 | H1 | C |
|---|---|---|---|---|---|---|
| GSFMG3025(6) | 3000 | 2500 | 150 | 3200 | 2580 | 650 |
| GSFMG3538(6) | 3500 | 3800 | 150 | 3700 | 3880 | 650 |
| GSFMG4025(6) | 4000 | 2500 | 150 | 4200 | 2580 | 650 |
| GSFMG4625(6) | 4600 | 2500 | 150 | 4800 | 2580 | 650 |
| GSFMG5021(6) | 5000 | 2100 | 150 | 5200 | 2180 | 650 |
| GSFMG5022(6) | 5000 | 2200 | 150 | 5200 | 2280 | 650 |
| GSFMG5025(6) | 5000 | 2500 | 150 | 5200 | 2580 | 650 |
| GSFMG5030(6) | 5000 | 3000 | 150 | 5200 | 3080 | 650 |
| GSFMG5525(6) | 5500 | 2500 | 150 | 5700 | 2580 | 650 |
| GSFMG6022(6) | 6000 | 2200 | 150 | 6200 | 2280 | 650 |
| GSFMG6025(6) | 6000 | 2500 | 150 | 6200 | 2580 | 650 |
| GSFMG6028(6) | 6000 | 2800 | 152 | 6300 | 2880 | 700 |
| GSFMG6032(6) | 6000 | 3200 | 152 | 6200 | 3280 | 650 |
| GSFMG7025(6) | 7000 | 2500 | 152 | 7300 | 2580 | 700 |