匠心 服务 创新 品质

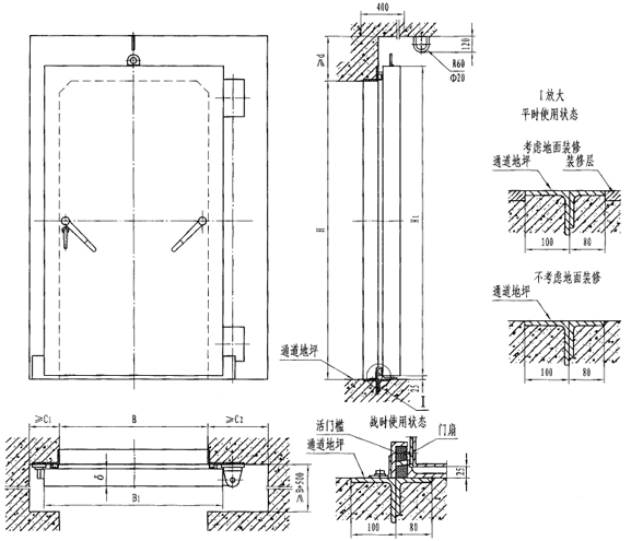
此类门的特点是平时不设门槛,地面平整,便于人员或车辆通行;战时快速设置门槛,以满足防护、密闭要求。

| 型号 | 门孔宽B | 门孔高H | 门扇厚δ | B1 | H1 | C1 | C2 | D |
|---|---|---|---|---|---|---|---|---|
| GHM0716 | 700 | 1600 | 56 | 900 | 1675 | 300 | 350 | 400 |
| GHM0820 | 800 | 2000 | 54 | 960 | 200 | 400 | 400 | 300 |
| GHM0920 | 900 | 2000 | 54 | 1060 | 2055 | 200 | 400 | 300 |
| GHM0921 | 900 | 2100 | 112 | 1100 | 2175 | 300 | 500 | 400 |
| GHM1020 | 1000 | 2000 | 54 | 1160 | 2055 | 200 | 400 | 300 |
| GHM1021 | 1000 | 2100 | 112 | 1200 | 2175 | 300 | 500 | 400 |
| GHM1027 | 100 | 2700 | 112 | 1200 | 2775 | 300 | 500 | 400 |
| GHM1218 | 1200 | 1800 | 56 | 1400 | 1875 | 300 | 350 | 300 |
| GHM1220 | 1200 | 2000 | 112 | 1360 | 2075 | 300 | 500 | 300 |
| GHM1221 | 1200 | 2100 | 112 | 1400 | 2175 | 300 | 500 | 400 |
| GHM1224 | 1200 | 2400 | 112 | 1400 | 2475 | 300 | 500 | 400 |
| GHM1227 | 1200 | 2700 | 112 | 1400 | 2775 | 300 | 500 | 400 |
| GHM1320 | 1300 | 2000 | 64 | 1460 | 2055 | 200 | 400 | 300 |
| GHM1520 | 1500 | 2000 | 112 | 1660 | 2075 | 300 | 500 | 300 |
| GHM1523 | 1500 | 2300 | 112 | 1700 | 2375 | 300 | 500 | 400 |
| GHM1525 | 1500 | 2500 | 112 | 1660 | 2575 | 300 | 500 | 300 |
| GHM1527 | 1500 | 2700 | 112 | 1700 | 2775 | 300 | 500 | 400 |
| GHM1820 | 1800 | 2000 | 112 | 2000 | 2075 | 300 | 500 | 300 |
| GHM1821 | 1800 | 2100 | 112 | 2000 | 2175 | 300 | 500 | 400 |
| GHM1827 | 1800 | 2700 | 112 | 2000 | 2775 | 300 | 500 | 400 |
| GHM2020 | 2000 | 2000 | 112 | 2200 | 2075 | 300 | 500 | 400 |
| GHM2028 | 2000 | 2800 | 112 | 2200 | 2875 | 300 | 500 | 300 |