匠心 服务 创新 品质

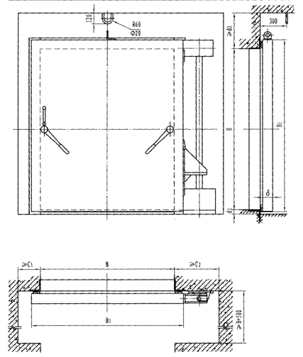
此类门的特点是具有固定门槛,门扇为梁板结构。

| 型号 | 门孔宽B | 门孔高H | 门扇厚δ | B1 | H1 | C1 | C2 | D1 | D2 |
|---|---|---|---|---|---|---|---|---|---|
| GM0609 | 600 | 900 | 80 | 780 | 1000 | 200 | 300 | 100 | 300 |
| GM0716 | 700 | 1600 | 80 | 800 | 1700 | 200 | 300 | 100 | 300 |
| GM0718 | 700 | 1800 | 80 | 800 | 1900 | 200 | 300 | 100 | 300 |
| GM0818 | 800 | 1800 | 80 | 900 | 1900 | 200 | 300 | 100 | 300 |
| GM0820 | 800 | 2000 | 80 | 900 | 2100 | 200 | 300 | 100 | 300 |
| GM0821 | 800 | 2400 | 80 | 900 | 2200 | 200 | 300 | 100 | 300 |
| GM0824 | 800 | 2400 | 80 | 1000 | 2500 | 200 | 300 | 100 | 300 |
| GM0916 | 900 | 1600 | 80 | 1000 | 1700 | 200 | 300 | 100 | 300 |
| GM0918 | 900 | 1800 | 80 | 1000 | 1900 | 200 | 300 | 100 | 300 |
| GM0920 | 900 | 2000 | 80 | 1000 | 2100 | 200 | 300 | 100 | 300 |
| GM0921 | 900 | 2100 | 80 | 1000 | 2200 | 200 | 300 | 100 | 300 |
| GM1020 | 1000 | 2100 | 80 | 1100 | 2100 | 200 | 300 | 100 | 300 |
| GM1021 | 1000 | 2100 | 80 | 1100 | 2200 | 200 | 300 | 100 | 300 |
| GM1118 | 1100 | 1800 | 80 | 1200 | 1900 | 200 | 300 | 100 | 300 |
| GM1220 | 1200 | 2000 | 80 | 1300 | 2100 | 200 | 100 | 300 | 300 |
| GM1318 | 1300 | 1800 | 112 | 1500 | 1923 | 250 | 400 | 50 | 400 |
| GM1320 | 1300 | 2000 | 112 | 1500 | 2123 | 250 | 400 | 50 | 400 |
| GM1321 | 1300 | 2100 | 112 | 1500 | 2223 | 250 | 400 | 50 | 400 |
| GM1518 | 1500 | 1800 | 112 | 1700 | 1923 | 250 | 400 | 50 | 400 |
| GM1520 | 1500 | 2000 | 112 | 1700 | 2096 | 250 | 50 | 1046 | |
| GM1521 | 1500 | 2100 | 112 | 1700 | 2223 | 250 | 400 | 50 | 400 |
| GM1621 | 1600 | 2100 | 112 | 1800 | 2223 | 250 | 450 | 50 | 400 |
| GM1720 | 1700 | 2100 | 112 | 1900 | 2123 | 250 | 450 | 50 | 400 |
| GM1721 | 1700 | 2100 | 112 | 1924 | 2146 | 250 | 450 | 50 | 300 |
| GM1726 | 1700 | 2600 | 138 | 1810 | 2710 | 250 | 450 | 100 | 400 |
| GM1824 | 1800 | 2400 | 112 | 2040 | 2446 | 250 | 450 | 30 | 300 |
| GM2020 | 2000 | 2000 | 112 | 2200 | 2096 | 250 | 500 | 50 | 400 |
| GM2025 | 2000 | 2500 | 112 | 2240 | 2546 | 250 | 450 | 30 | 300 |