产品中心

匠心 服务 创新 品质

向下滚动
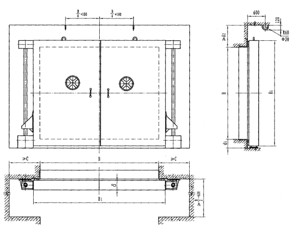
钢结构双扇密闭门

此类门的特点是具有固定门槛,门扇为梁板结构。

型号 门孔宽B 门孔高H 门扇厚δ B1 H1 C D1 D2
GSM2021 2000 2100 87 2100 2200 600 150 450
GSM2434 2400 3400 152 2640 3640 600 170 400
GSM2521 2500 2100 87 2590 2200 600 150 450
GSM2525 2500 2500 87 2590 2610 700 150 500
GSM2721 2700 2100 87 2790 2200 600 150 450
GSM3022 3000 2200 106 3080 2300 700 150 500
GSM3025 3000 2500 106 3080 2600 700 150 500
GSM3027 3000 2700 176 3300 3000 700 200 500
GSM3030 3000 3000 106 3090 3110 700 150 500
GSM3035 3000 3500 176 3300 3800 700 200 500
GSM3228 3200 2800 176 3500 3100 700 200 500
GSM3427 3400 2700 112 3700 3000 700 150 500
GSM3434 3400 3400 126 3490 3640 500 150 500
GSM3525 3500 2500 152 3800 2800 750 200 600
GSM3535 3500 3500 172 3800 3800 700 200 500
GSM3620 3600 2000 108 3840 2240 700 150 500
GSM3721 3700 2100 176 4000 2400 700 200 500
GSM3724 3700 2400 176 400 2700 700 200 500
GSM3728 3700 2800 176 4000 3100 700 200 500
GSM3730 3700 3000 172 4000 3300 700 200 500
GSM3732 3700 3200 172 4000 3500 700 200 500
GSM3735 3700 3500 172 4000 3800 700 200 500
GSM4022 4000 2200 106 4080 2300 700 200 500
GSM4025 4000 2500 106 4080 2600 700 150 500
GSM4030 4000 3200 172 4300 3300 700 200 500
GSM4032 4000 3200 172 4200 3400 700 200 500
GSM4035 4000 3500 172 4300 3800 700 200 600
GSM4532 4500 3200 172 4800 3500 700 200 600
GSM4535 4500 3500 172 4800 3800 700 200 600
GSM5025 5000 2500 150 5240 2740 700 150 500
GSM6022 6000 2500 152 6300 2500 700 200 500
GSM6025 6000 2500 152 6300 2800 700 200 500