匠心 服务 创新 品质


电控密闭门的防电磁脉冲能力为III级。改类电控门轻变灵活,为一机两用电控门,即开关门与开关锁共用一个动力装置,具有就地控制、远程控制及智能控制(门禁系统)三种控制方式,并可根据工程需要加装安全监控和电磁锁装置。有下列要求之一时,宜采用手动、电动两用的防护设备:
(1)安装位置处于手动操作不便的场所;
(2)有自动控制、远程控制或智能控制要求;
(3)有启动时间要求。

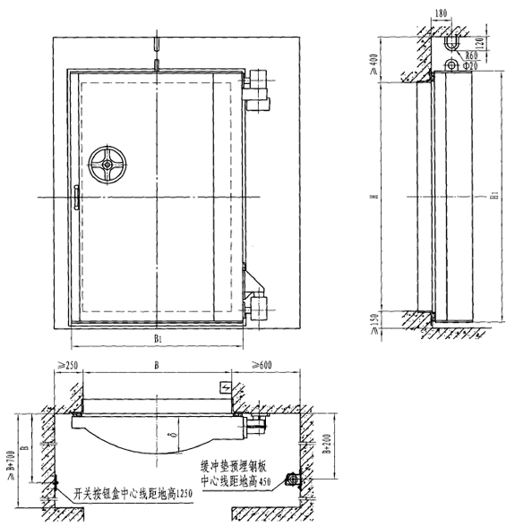
| 型号 | 门孔宽B | 门孔高H | 门扇厚δ | B1 | H1 | 启闭时间(s) |
|---|---|---|---|---|---|---|
| DM1020 | 1000 | 2000 | 309 | 1200 | 2200 | ≤15 |
| DM1320 | 1300 | 2000 | 323 | 1500 | 1809 | ≤15 |
| DM1520 | 1500 | 2000 | 365 | 2200 | 1946 | ≤15 |