产品中心

匠心 服务 创新 品质

向下滚动
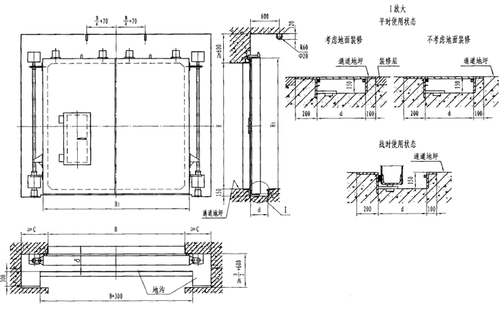
降落式双扇密闭门

此类门的特点是平时地面无门槛,便于人员和车辆通行;战时将门扇立转、降落及平移,以满足防护、密闭要求,其上带有方便人员临时出入的小门,平战转换快捷。新型降落门改进了其升降机构,操作更为方便。

型号 门孔宽B 门孔高H 门扇厚δ B1 H1 D
JSM2525 2500 2500 200 2700 2700 360
JSM3025 3000 2500 196 3200 2700 360
JSM4025 4000 2500 190 4200 2700 400
JSM4026 4000 2600 192 4200 2800 400
JSM4525 4500 2500 192 4700 2700 400
JSM4526 4500 2600 192 4700 2800 400
JSM5025 5000 2500 192 5200 2700 450
JSM5026 5000 2600 196 5200 2800 450
JSM5027 5000 2700 196 5200 2900 450
JSM6025 6000 2500 196 6200 2700 450
JSM6026 6000 2600 196 6200 2800 450
JSM6027 6000 2700 196 6200 2900 450
JSM6030 6000 3000 196 6200 3200 450
JSM7025 7000 2500 196 7200 2700 500
JSM7026 7000 2600 196 7200 2800 400